Villa única en Supermaresme
- 17.000.000€
Descripción
RMP Real Estate presenta esta increíble finca de lujo en Supermaresme. Una villa nueva a estrenar, completamente acabada y lista para entrar a vivir. La vivienda tiene una ubicación privilegiada; se sitúa en el centro de la urbanización, cerca de todos los accesos. Dispone de 11.000 metros cuadrados de parcela y bosque privado, que ofrecen intimidad y privacidad únicas.
Todas las fachadas disponen de enormes ventanales de cristal con marco en madera noble que proporcionan muchísima luminosidad a cualquier hora del día en toda la casa. La villa está rodeada de una increíble terraza de tarima flotante. Además, desde cualquier lugar de la vivienda se disfruta de maravillosas vistas. Se puede ver el Mar Mediterráneo, la montaña, toda la costa del Maresme e incluso Barcelona.
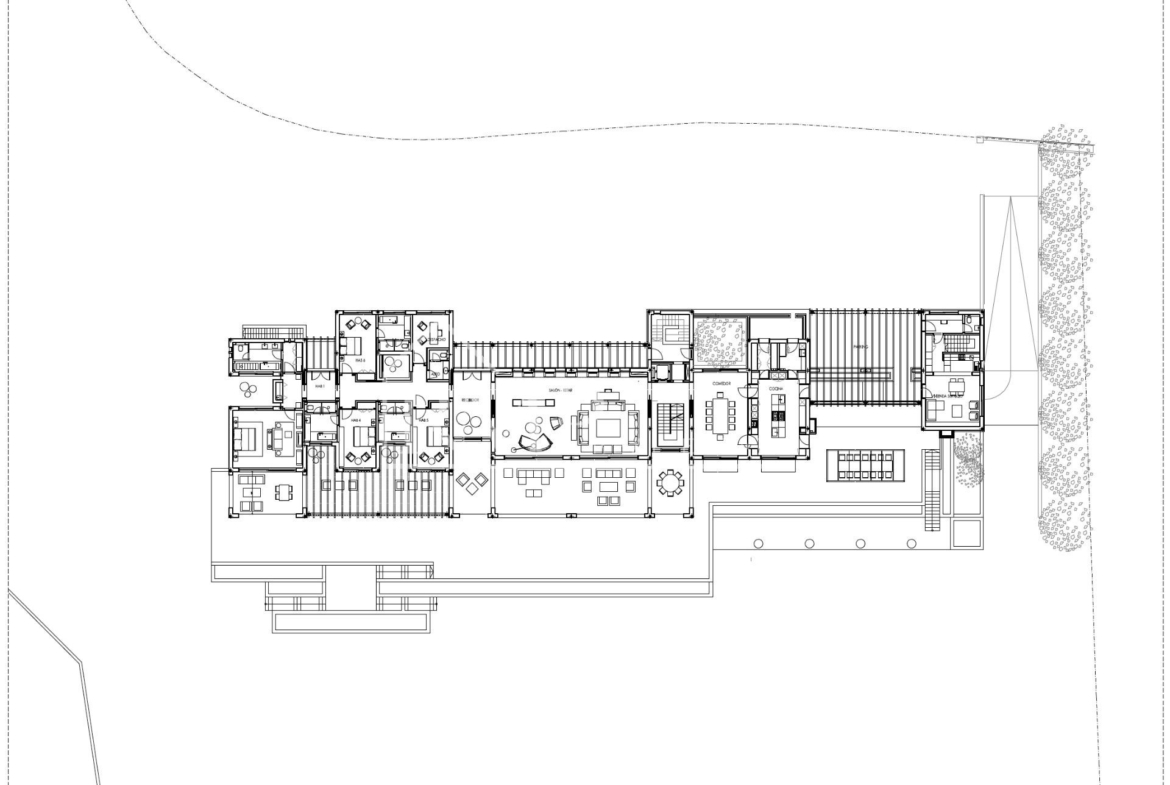
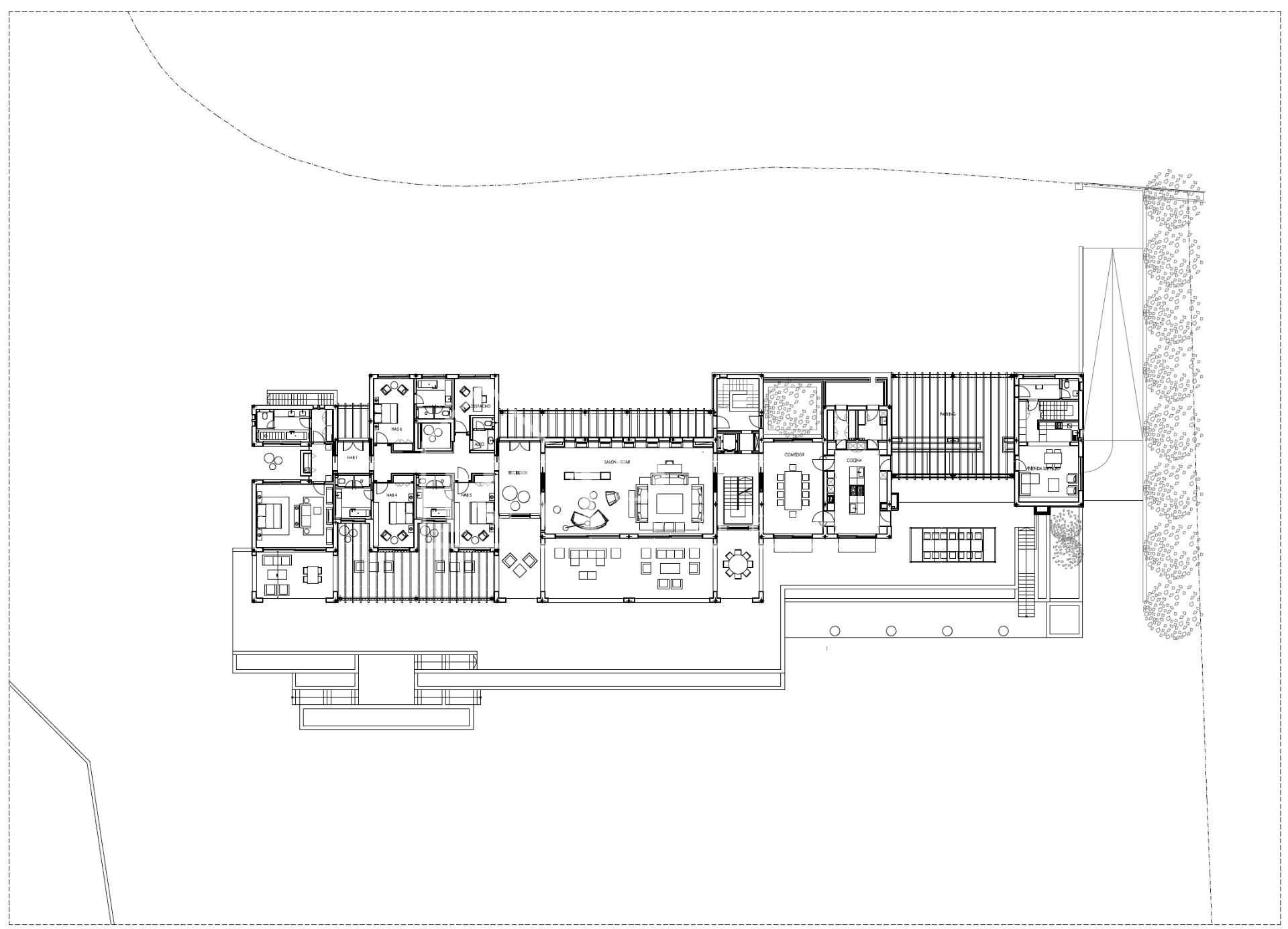
La vivienda cuenta con 4.000 metros cuadrados construidos distribuidos en 3 plantas en los que encontramos 6 suites y habitaciones auxiliares y de servicio. Accedemos a la planta principal a través de un increíble hall de 30 metros cuadrados que funciona como distribuidor. En la zona de día, situada a la derecha de la finca, encontramos un salón de 120 metros cuadrados con acceso al comedor de 50 metros cuadrados. Y una maravillosa cocina de 54 metros cuadrados con sala de máquinas, despensa y entrada de servicio. En esta misa planta, encontramos también una zona de noche que cuenta con un despacho de 20 metros cuadrados, dos suites de 30 metros cuadrados con baño y una master suite de 50 metros cuadrados con baño y vestidor. En la primera planta, encontramos un patio interior que funciona como tragaluz y ofrece luz natural a todas las estancias.
Desde la entrada principal podemos acceder a la primera planta a través de unas majestuosas escaleras o con el ascensor. En esta planta encontramos una increíble máster suite de 40 metros cuadrados con sala de 28 metros cuadrados, vestidor de 24 metros cuadrados y baño privado. La suite disfruta de una increíble terraza con vistas al mar.
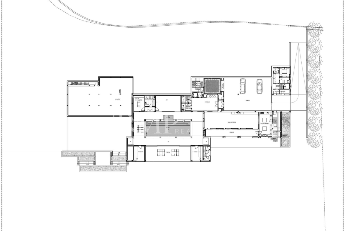
En la planta -1 encontramos la zona de spa que cuenta con salada de masaje, una increíble piscina interior climatizada de 15 metros de largo con zona de yacuzzi, sauna seca y sauna húmeda, duchas y zona de gimnasio. Esta planta dispone también de un increíble salón de verano de 115 metros cuadrados y una cocina de 45 metros cuadrados con acceso al área de servicio.
La villa dispone también de un apartamento independiente para el servicio o de vigilancia, un gran garaje con capacidad para 10 coches, ascensor Otis y tres habitaciones del pánico. Algunos extras de lujo con los que cuenta son: suelo de porcelana italiana en el interior y en las terrazas, cerámica desde el suelo al techo en los baños, paredes dobles de ladrillo con aislante entre las habitaciones, calefacción por suelo radiante en toda la casa, aire acondicionado por conductos Daikin, puertas de roble de alta gama, domótica, ventanas de seguridad con cámara de aire y protección solar, piscina de la casa Freixanet y cocinas de alta gama de Bulthaup.
Estaremos encantados de atenderle para ayudarle con cualquier duda que tenga respecto a esta propiedad. Le ofreceremos asesoramiento personalizado y le atenderemos sin ningún compromiso.[IW]
Dirección
Abrir en Google Maps-
Ciudad: Sant Andreu de Llavaneres
-
Comunidad: Barcelona
-
Código postal: 08392
-
Zona: Sant Andreu de Llavaneres
Detalles
Actualizado en marzo 10, 2026 a 10:17 pm-
Referencia de la propiedad 443-J2
-
Precio 17.000.000€
-
Tamaño 4000 m2
-
Superficie de parcela 11000 m2
-
Habitaciones 8
-
Baños 12
-
Tipo de propiedad Casas / Chalets
-
Operación Venta
Características
- Aa: 1
- Ano construccion: 2022
- Armarios empotrados: 1
- Ascensor: 1
- Calefaccion: Individual
- Certificacion emisiones letra: A
- Certificacion emisiones valor: 6.00
- Certificacion energetica letra: A
- Certificacion energetica valor: 33.00
- Chimenea: 1
- Cocina equipada: 1
- Conserje portero seguridad: 1
- Contraventanas: Madera
- Doble acristalamiento: 1
- Domotica: 1
- Estado edificio: En buen estado
- Garaje incluido: 1
- Garaje: Si
- Jardin: Privado
- Lavanderia: 1
- Mascotas: 1
- Material ventanas: Madera
- No plazas garaje: 10
- Orientacion: Sur
- Patio: Compartido
- Piscina: Climatizada
- Pisos edificio: 3
- Puerta blindada: 1
- Solarium: 1
- Sotano: 1
- Terraza: No acristalada
- Tipo calefaccion: Geotermia
- Tipo cocina: Individual
- Tipo suelo: Ceramica
- Tipo ventanas: Corredera
- Trastero: 1
- Vistas: Mar



































































































