16
  • 3
  • Habitaciones
  • 1
  • Baño
  • 131 Sq M
  • Superficie construida
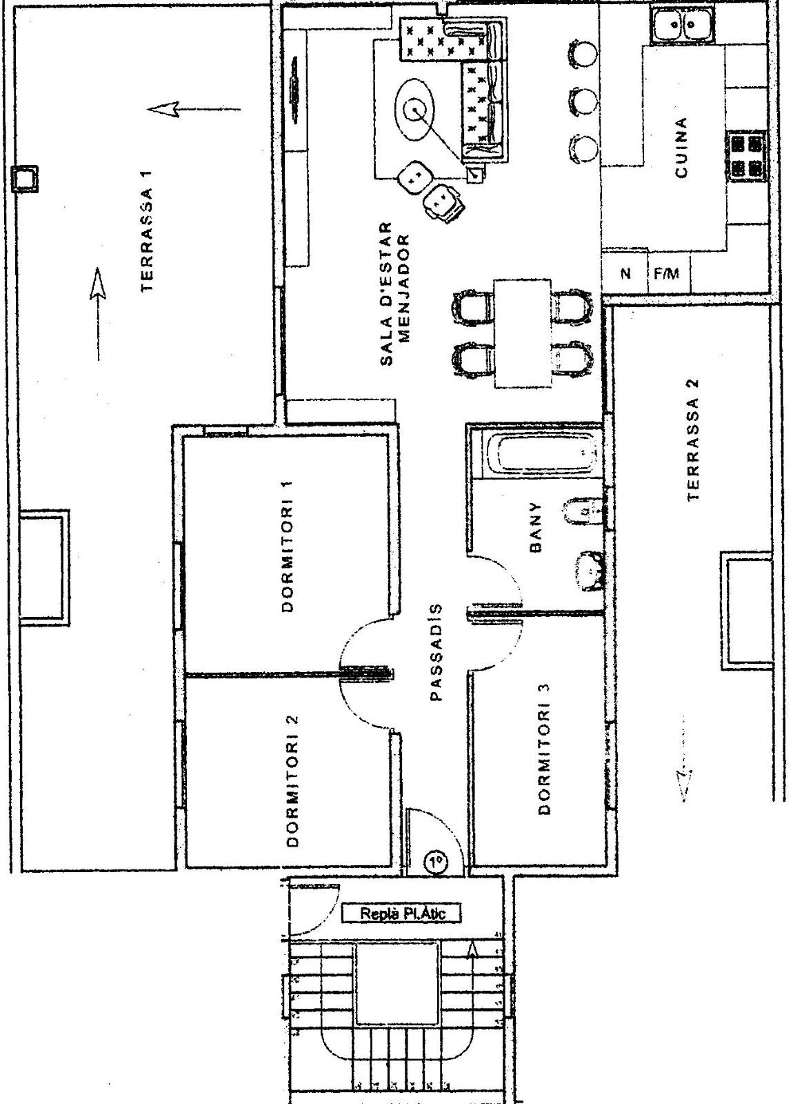
Ático único a tres vientos con 60 m² de terrazas en el centro de Pineda
  • 290.000€

Descripción

Situado en una de las calles más céntricas y tranquilas de Pineda, este exclusivo ático combina el encanto de las viviendas clásicas con el confort de un hogar moderno. Su carácter único y su luminosidad recuerdan a las propiedades del Eixample de Barcelona, con detalles que lo hacen realmente especial.

Al acceder a la vivienda, destaca su orientación a tres vientos y la gran cantidad de luz natural que entra por sus amplios ventanales, creando una sensación de amplitud y bienestar en cada estancia. Los techos altos y las puertas de tres metros aportan una elegancia atemporal, mientras que sus 60 m² de terrazas privadas permiten disfrutar del sol durante todo el día y crear diferentes ambientes exteriores.

El edificio ha sido completamente rehabilitado, ofreciendo todas las comodidades actuales sin renunciar al carácter original de la finca. Con 61 m² construidos aprovechados al máximo, cada espacio ha sido diseñado para proporcionar funcionalidad y confort.

Una propiedad única en la zona, perfecta para quienes buscan una vivienda luminosa, con personalidad y en una ubicación inmejorable.[IW]

  • Ciudad: Pineda de mar
  • Comunidad: Barcelona
  • Código postal: 08397
  • Zona: Pineda de Mar

Detalles

Actualizado en diciembre 29, 2025 a 8:47 am
  • Referencia de la propiedad 921-J
  • Precio 290.000€
  • Tamaño 131 Sq M
  • Habitaciones 3
  • Baño 1
  • Operación Venta

Calculadora de hipoteca

0 Comentario

Ordenar por:
Escribe una reseña

Escribe una reseña

Comparar listados

Comparar

Este sitio web utiliza cookies para que usted tenga la mejor experiencia de usuario. Si continúa navegando está dando su consentimiento para la aceptación de las mencionadas cookies y la aceptación de nuestra política de cookies, pinche el enlace para mayor información.

ACEPTAR
Aviso de cookies